NEW

NISHINOMIYA・FRONT 401

15.7万円

管理 / 共益費 13,000円

兵庫県西宮市与古道町

阪神本線「西宮」駅徒歩3分

東海道本線「西宮」駅徒歩9分

阪急今津線「今津」駅徒歩15分

賃料
15.7万円
敷金(保証金)
0ヶ月(-)
間取り
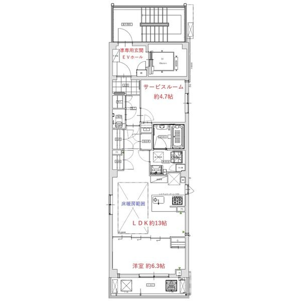
1LDK+S(納戸)
向き
-
所在地
兵庫県西宮市与古道町
管理 / 共益費
13,000円
礼金
2ヶ月
専有面積
54.54㎡
築年月
2026年2月(予定)
交通

阪神本線西宮」駅 徒歩3分

東海道本線西宮」駅 徒歩9分

阪急今津線今津」駅 徒歩15分

物件の特徴

  • バストイレ別

  • 室内洗濯機置場

  • TVモニタ付きインターホン

  • カウンターキッチン

  • 独立洗面台

  • 浴室乾燥機

  • オートロック

  • エレベーター

  • ネット使用料無料

セールスポイント

「NISHINOMIYA・FRONT」です♪ハイグレード賃貸マンション♪EVホールは各住戸で準専用、床暖房・かん太くん装備、徒歩3分で駅にアクセスできる物件です♪西宮市なら、お客様の希望条件を満たす住まいを求めることができるでしょう♪まずは、info@nagomi-chintai.comや0798-42-7908までご連絡ください(*^_^*)

ポイント

担当者のコメント

石川  慎也

2月末までキャンペーンのためホームページからのお問合せのみ仲介手数料なし!(不動産情報サイトからのお問合せは家賃の55%)入浴中や就寝中で荷物を受け取れない場合でも、宅配ボックスがあれば再配達せずに受け取ることができます!室内設備は洗面化粧台・浴室乾燥機など大変充実!収納はクロゼット・シューズボックスなどが備え付けられているので、衣類や日用品の収納に重宝します!三口コンロが付いているマンションです!床暖房付きのマンションです!阪神本線西宮付近で住まい探しをするなら、地域に密着した当社にお任せください!メールでのお問い合せはにてお待ちしております(*´ω`*)

基本情報

保証金
-
敷引 / 償却
- / -
敷金積み増し
-
間取り / 詳細
1LDK+S(納戸)
LDK 13.0帖/洋室 6.3帖/S 4.7帖
向き
-
専有面積
54.54㎡
バルコニー
(テラス)面積
-
所在階 / 階建て
4階 / 5階建
建物構造
鉄骨造
築年月
2026年2月(予定)
種別
賃貸マンション
保険会社 / 料金
有  10,000円  / 1年
保証会社 / 料金
必加入 / -
初回保証料 総家賃の100%
駐車場
無 -
現況
未完成
入居可能時期
相談
その他条件
ファイテック:7,260円  室内清掃費用:7万400円

設備条件

設備条件
  • デザイナーズ / 2人入居可 / バリアフリー / カップル向け / 女性向け / 新婚さん向け / キャンペーン / 仲介手数料無料 / 室内洗濯機置場 / フローリング / バルコニー / 都市ガス / 公営水道 / 公共下水 / エレベーター / 照明器具付き / 駐輪場 / 敷地内ごみ置き場 / ガスコンロ / コンロ2口以上 / システムキッチン / コンロ3口 / カウンターキッチン / バス・トイレ別 / 追焚機能浴室 / 浴室乾燥機 / 温水洗浄便座 / 洗面台 / 洗髪洗面化粧台 / シャワー / 独立洗面台 / エアコン / 床暖房 / シューズボックス / 収納豊富 / インターネット対応 / ネット使用料無料 / オートロック / TVモニタ付インターホン / 宅配ボックス / 複層ガラス / 防犯カメラ / 角部屋 / 初期費用カード決済可

その他

契約期間
2年
賃貸区分
一般
更新料
-
更新事務手数料
-
総戸数
-
特優賃
-
取引態様
仲介
物件番号
99589974
管理コード
-
情報更新日
2026年01月18日
次回更新予定日
2026年01月25日
取扱会社
  • 合同会社鈴 なごみ賃貸
  • 兵庫県西宮市鳴尾町5丁目5-14 
  • TEL:0798-42-7908
  • 兵庫県知事 (1) 第204546号
備考
2月末までキャンペーンのためホームページからのお問合せのみ仲介手数料なし!(不動産情報サイトからのお問合せは家賃の55%)「NISHINOMIYA・FRONT」:西宮市エリアの新居にピッタリ☆西宮渡辺心臓・血管センターまで徒歩6分なので、近くて安心☆共用部には宅配ボックスが備え付けられているため、非対面で荷物を受け取れます☆阪神本線西宮周辺に住まいを探すなら、西宮市に詳しい当社にお任せください☆お電話でのお問い合わせは0798-42-7908までお気軽にどうぞ(#^^#)

NISHINOMIYA・FRONTの他の部屋

  1. 301

    1SLDK (54.54㎡)

    15.6万円(0.95万円/坪)

  2. 501

    1SLDK (54.54㎡)

    15.8万円(0.96万円/坪)

周辺施設

  • 西宮渡辺心臓・血管センターの画像

    総合病院

    西宮渡辺心臓・血管センター

    408m(6分)

  • えびす宮総本社 西宮神社の画像

    寺院・神社

    えびす宮総本社 西宮神社

    706m(9分)

  • 京都銀行西宮支店の画像

    銀行

    京都銀行西宮支店

    724m(10分)

  • ニトリ 西宮駅前店の画像

    インテリア

    ニトリ 西宮駅前店

    740m(10分)

  • ファミリーマート 西宮枦塚町店の画像

    コンビニエンスストア

    ファミリーマート 西宮枦塚町店

    750m(10分)

  • ミニストップ 西宮中前田町店の画像

    コンビニエンスストア

    ミニストップ 西宮中前田町店

    886m(12分)

  • ファミリーマート 今津駅前店の画像

    コンビニエンスストア

    ファミリーマート 今津駅前店

    1089m(14分)

  • 播州信用金庫今津支店の画像

    銀行

    播州信用金庫今津支店

    1111m(14分)

  • ジャパン 西宮戎店の画像

    ディスカウントショップ

    ジャパン 西宮戎店

    1128m(15分)

  • 今津(阪急線)の画像

    今津(阪急線)

    1141m(15分)

  • 今津(阪神線)の画像

    今津(阪神線)

    1202m(16分)

  • ライフ 今津駅前店の画像

    スーパー

    ライフ 今津駅前店

    1203m(16分)

近隣の物件

  1. ラウル甲子園口

    西宮市甲子園口2丁目

    1DK (30.34㎡)

    7万円

  2. フジパレス香櫨園サウス

    西宮市川西町

    1LDK (33.00㎡)

    7.5万円

  3. Liber西宮

    西宮市今津水波町

    1R (25.25㎡)

    6.6万円

  4. セレニテ西宮本町

    西宮市本町

    1K (25.19㎡)

    6.8万円

NISHINOMIYA・FRONT

NISHINOMIYA・FRONT

15.7万円

13,000円

1LDK+S(納戸)(54.54㎡)

お気軽にお問い合わせください

LINEからお問い合わせ 無料お問い合わせ

合同会社鈴 なごみ賃貸

0798-42-7908

10:00~19:00

(休:水曜日(1月~3月は休まず営業))