名次町ロジュマン

27.5万円 管理/共益費 15,000円

兵庫県西宮市名次町2-1

阪急甲陽線「苦楽園口」駅徒歩10分

阪急神戸本線「夙川」駅徒歩15分

東海道本線「さくら夙川」駅徒歩17分

価格
27.5万円 管理/共益費 15,000円
間取り/面積
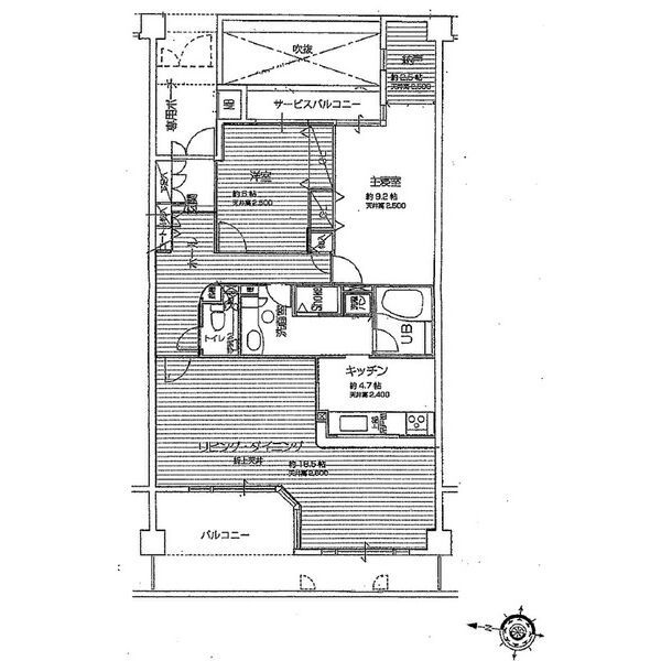
2LDK/98.04㎡
所在地
兵庫県西宮市名次町2-1
築年
2002年5月(築23年)
駐車
空有
交通

阪急甲陽線苦楽園口」駅 徒歩10分

阪急神戸本線夙川」駅 徒歩15分

東海道本線さくら夙川」駅 徒歩17分

名次町ロジュマンの基本情報

物件名
名次町ロジュマン
価格
27.5万円
管理/共益費
15,000円
築年月
2002年5月(築23年)
総戸数
-
所在地
兵庫県西宮市名次町2-1
交通

阪急甲陽線苦楽園口」駅 徒歩10分

阪急神戸本線夙川」駅 徒歩15分

東海道本線さくら夙川」駅 徒歩17分

名次町ロジュマンの詳細情報

設備条件
  • エレベーター
  • 敷地内ごみ置き場
  • オートロック
  • 宅配ボックス
設備(その他)
    -
駐車場/月額
空有/33,000円
用途地域
-
戸数
- / -
取引態様
仲介
備考
「名次町ロジュマン」のここがイチオシ◎通勤やお出かけに便利な、徒歩10分に駅のある物件です◎こちらはマンションタイプになります◎付近に駅が2つあるので、経路を用途や行き先によって選べる物件です◎西宮市エリアにある賃貸情報のことなら、地域に密着した当社へお任せください◎当社は、多種多様な賃貸情報を取り扱っております◎ご要望や不明な点などございましたら、お気軽にご連絡ください(*^_^*)

名次町ロジュマンのコメント(おすすめポイント)

ホームページからのお問合せのみ仲介手数料なし!(不動産情報サイトからのお問合せは家賃の55%)名次町ロジュマン:造りとデザインに関して、自信をもって情報を提供できるマンションです☆様々な場所へのアクセスが便利になる、2駅利用可能なマンションです☆忙しい方にも好評の敷地内ごみ置き場付物件☆アクセスの良い徒歩10分の物件です☆できるだけ早めに不動産情報を集めたい方は当社スタッフまでご連絡ください☆地域の不動産情報をいち早くお届けします(^o^)

名次町ロジュマンで募集中の物件

  1. 2階

    29.65坪 (98.04㎡)

    27.5万円(9274.87円/坪)

周辺施設

  • ローソン 西宮樋之池町店の画像

    コンビニエンスストア

    ローソン 西宮樋之池町店

    1364m(18分)

  • ジャパン 西宮青木店の画像

    ディスカウントショップ

    ジャパン 西宮青木店

    1434m(18分)

  • ローソン 西宮青木町店の画像

    コンビニエンスストア

    ローソン 西宮青木町店

    1436m(18分)

  • 越木岩神社の画像

    寺院・神社

    越木岩神社

    1937m(25分)

近隣の物件

  1. 西宮市上鳴尾町

    3LDK (89.50㎡)

    21万円

  2. 西宮市甲子園町

    1DK (29.03㎡)

    7.6万円

  3. 西宮市今津山中町

    1LDK (32.90㎡)

    8.3万円

  4. 西宮市上ケ原三番町

    2LDK (56.62㎡)

    12.6万円

よく見られている物件

  1. 西宮市甲子園口3丁目

    3LDK (51.45㎡)

    7.3万円

  2. 西宮市今津巽町

    2DK (51.84㎡)

    8.5万円

  3. 西宮市浜甲子園2丁目

    2DK (33.00㎡)

    4.5万円

  4. 西宮市広田町

    3LDK (72.00㎡)

    14.1万円

名次町ロジュマン

お気軽にお問い合わせください

LINEからお問い合わせ 無料お問い合わせ

合同会社鈴 なごみ賃貸

0798-42-7908

10:00~19:00

(休:水曜日(1月~3月は休まず営業))